Do you love planning and organizing your living space but struggle to find the right tools? Look no further! Our collection of free printable bedroom floor plan templates is here to save the day. Whether you’re moving into a new place or just looking to rearrange your current bedroom layout, these templates are perfect for visualizing your design ideas.
With a variety of layouts to choose from, you can experiment with different furniture placements, bed sizes, and overall room configurations. These templates are easy to use and can help you make informed decisions before making any physical changes to your space. Say goodbye to the guesswork and hello to a well-thought-out bedroom design!
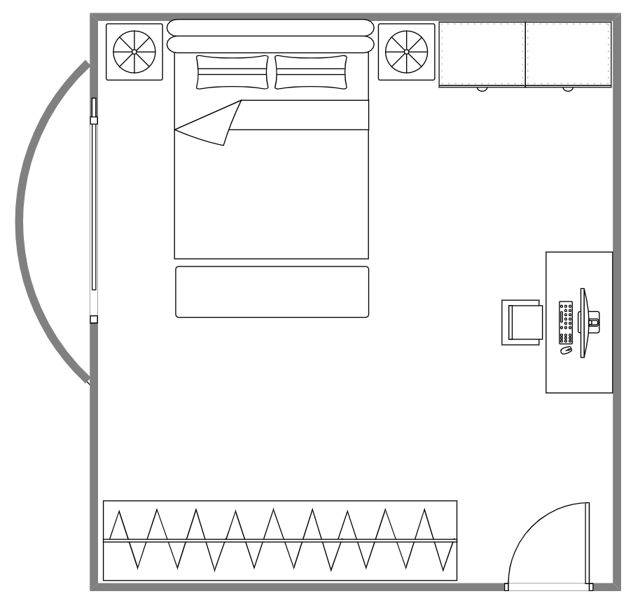
Free Printable Bedroom Floor Plan Templates
Free Printable Bedroom Floor Plan Templates
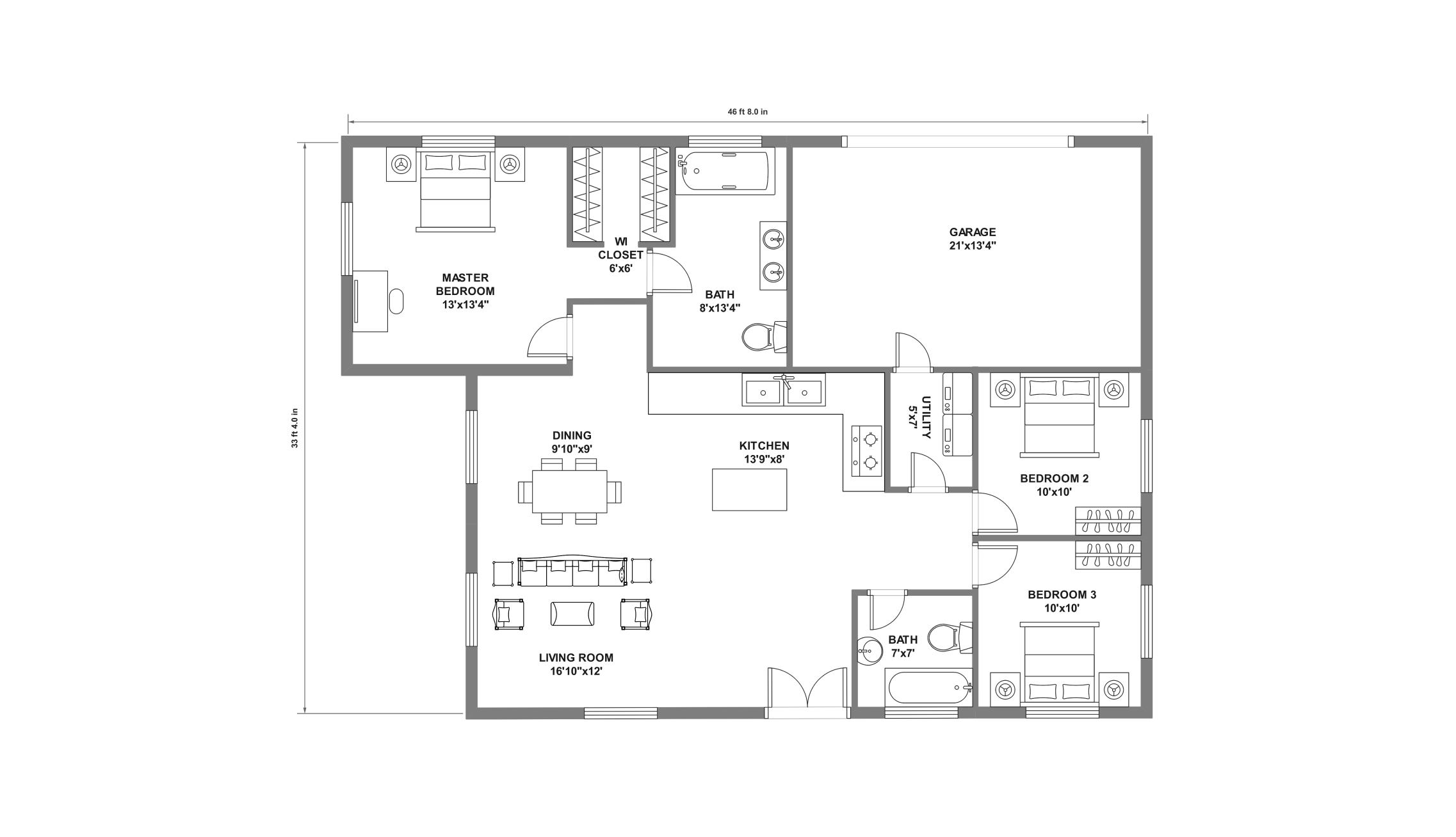
From simple square rooms to more complex L-shaped layouts, our templates cater to all types of bedrooms. You can easily customize the dimensions to match your actual room size and start playing around with various design possibilities. Don’t worry about drawing to scale – these templates do the work for you!
Whether you prefer a minimalist approach or a cozy, cluttered feel, our templates allow you to visualize the final look before lifting a finger. Take the stress out of redesigning your bedroom and have fun exploring different options. Your dream bedroom layout is just a print away!
So, why wait? Download our free printable bedroom floor plan templates today and start creating the bedroom of your dreams. With these handy tools at your disposal, you’ll be one step closer to achieving the perfect balance of style and functionality in your living space. Happy designing!
Free Editable Bedroom Floor Plan Examples U0026 Templates EdrawMax
56 Free Floor Plan Templates Of Various Size Shapes Styles And
Free Editable House Plan Examples U0026 Templates EdrawMax
Free Printable Room Planner Brooklyn Berry Designs
Free Editable Bedroom Layouts EdrawMax Online





