As we enter the fall season, it’s crucial to prioritize safety in the workplace. Creating a strong fall protection plan is essential to ensure the well-being of employees. By implementing a Sample Fall Protection Plan Template, you can set clear guidelines and procedures for fall prevention.
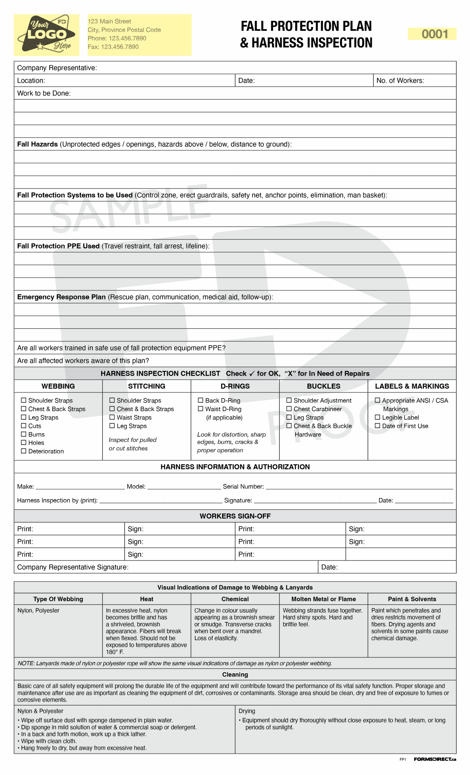
One key aspect of the Sample Fall Protection Plan Template is identifying potential fall hazards in the workplace. This includes assessing areas where employees work at heights, such as rooftops or scaffolding. By pinpointing these risks, you can develop strategies to mitigate them effectively.
Sample Fall Protection Plan Template
Sample Fall Protection Plan Template: Guidelines for Implementation
Another critical component of the Sample Fall Protection Plan Template is providing employees with proper training. Educating your team on fall prevention measures, equipment usage, and emergency procedures is vital for creating a safe work environment. Regular training sessions can help reinforce these practices.
Furthermore, it’s essential to regularly inspect and maintain fall protection equipment to ensure its effectiveness. This includes harnesses, lanyards, guardrails, and anchors. By keeping these tools in top condition, you can minimize the risk of accidents and injuries in the workplace.
In conclusion, prioritizing fall protection is not only a legal requirement but also a moral obligation to ensure the safety of your employees. By utilizing a Sample Fall Protection Plan Template and following these guidelines, you can create a secure work environment where everyone can thrive.
5 Task 3 1 Fall Protection Plan Template Capital Safety 3833
Fall Protection Plan RCAW
Fall Protection Plan Harness Inspection FP1 Forms Direct
SAMPLE FALL PROTECTION PLAN The Response Group Inc
Fall Protection Plan Template Better Than PDF Or Word





